Büro in Köln mieten 2.037,00 m2 ab 9,00 €/m2 (BNPPRE K11137)

Arbeiten im Leskan Park- Raum für Ideen und Entwicklung

51069 Köln

  • K11137

    Objekt-ID

  • 9.00 - 15.00 €

    Mietpreis pro m2/Monat

  • 3,00 €

    Nebenkosten pro m2/Monat

  • 2,037.00 m2

    Bürofläche

  • 282.00 m2

    Teilbar ab

  • kurzfristig

    Verfügbarkeit

Ihr Ansprechpartner

[object Object]

Fabian Ehrhardt

Tel: +49 221 934633-18

Fakten

Büromarktzone2.5 Mülheim
VerkabelungCat 7
Kühlung/ LüftungTeilklimatisierung
Preis pro Parkfläche35,00 €/Monat

Objekt

ObjektartBürohaus

Objektbeschreibung

Der LESKANPark ist das ehemalige Werksgelände von Total Walther und hat sich in den letzten Jahren zu einem Gewerbepark mit Charme entwickelt. Historische Fassaden im spannenden Kontrast zu moderner, funktionaler Architektur stehen für die Attraktivität des Parks. Nachhaltige Sanierungsarbeiten auf dem gesamten Gelände haben zu Revitalisierung geführt und den Gewerbepark zu einer einzigartigen Adresse in Köln aufgewertet.

Lage

Das Objekt befindet sich im LESKANPark, nördlich grenzt der LESKANPark an ein Naturschutzgebiet, südlich an weitere Gewerbeflächen und westlich an Wohnbebauung. Dellbrück liegen im rechtsrheinischen Köln und umfassen auch die Stadtteile Mülheim, Kalk, Holweide und Poll. Der ÖPNV wird durch S-Bahn sowie Buslinien sicher gestellt. Die Autobahn A3 ist nur wenige Fahrminuten entfernt.
Fußweg zu öffentlichen Verkehrsmitteln1 Minuten
Fahrtzeit zum nächsten Hauptbahnhof25 Minuten
Fahrtzeit zur nächsten Autobahn12 Minuten
Fahrzeit zum nächsten Flughafen20 Minuten

Karte

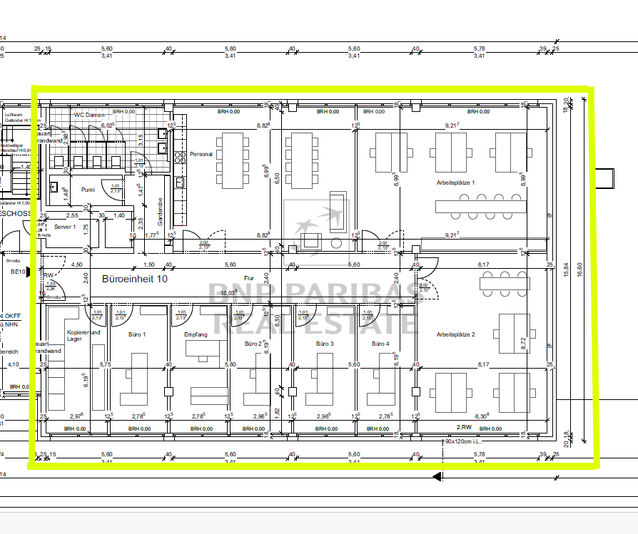
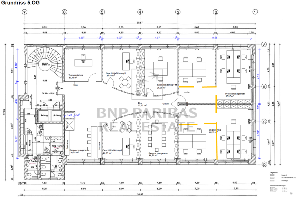
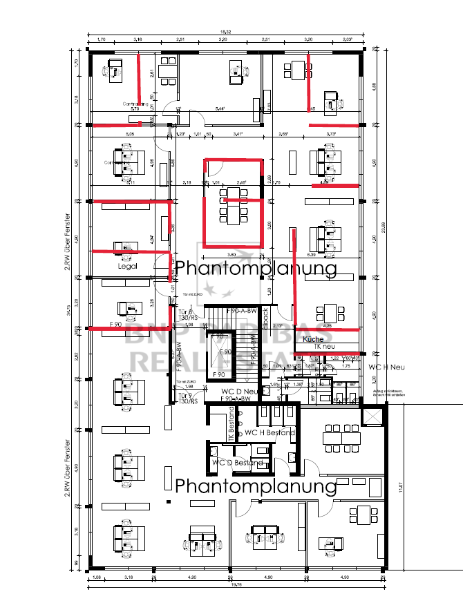
Die Fläche

Gesamtfläche des Objektes:
23.300,00 m², davon bis zu 2.037,00 m² verfügbar
Gesamtfläche des Objektes23.300,00 m², davon 2.037,00 m² verfügbar

Energieausweis für dieses Objekt

Zum Zeitpunkt der Erstellung des Exposés lag uns der entsprechende Energieausweis nicht vor. Nach § 16 EnEV 2014 ist der Verkäufer/Vermieter jedoch dazu verpflichtet, dem Kauf-/Mietinteressenten den Energieausweis oder eine Kopie davon bei der Besichtigung vorzulegen und bei Abschluss des Vertrages im Original/Kopie zu übergeben.

Information zur Provision

ProvisionJa
ProvisionshöheProvisionspflichtig, siehe Sonstiges

Provisionshinweis

Wir weisen Sie darauf hin, dass Ihnen bei erfolgreichem Abschluss eines Mietvertrages eine Provision berechnet wird - es sei denn, das Objekt wurde Ihnen vorab ausdrücklich provisionsfrei angeboten. Bitte beachten Sie unsere AGB (https://www.realestate.bnpparibas.de/agb/bnppre-gmbh).